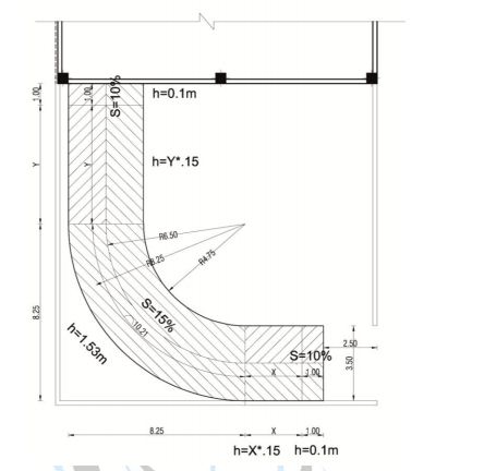
محاسبه طول رمپ
جمعه, ۱۶ آبان ۱۳۹۳، ۰۳:۰۹ ب.ظ
عزیزان طول رمپ و نحوه محاسبه آن هم
از نکات ویژه و مهمی در طراحی معماری است...
لذا توضیحاتی جهت محاسبه ان در ادامه مطلب آورده شده...
درصد و میزان شیب رمپ:
در رمپها به ازای هر متر پیشروی بر روی رمپ به مقدار درصدی
که در نظر گرفته شده است ارتفاع کم یا زیاد می شود.....
ادامه بحث را در وبگاه جدید ما دنبال بفرمایید...


